

Le projet de la nouvelle gare de Chongqing propose une stratégie géographique pour définir une nouvelle porte d’entrée sur le territoire. À la fois vitrine de l’unicité et de la richesse du site de la vallée du Yangzi et nouveau concept urbain, Eco-valley, plaçant la relation de l’homme à son environnement au centre des réflexions.


Le projet s’inscrit dans l’initiative « One belt one road » du président Xi Jing Ping qui dessine une nouvelle route de la soie par un ensemble de liaisons maritimes et de voies ferroviaires entre la Chine et l'Europe. Chongqing est l’une des villes du Sud-Ouest de la Chine dont la croissance est l’une des plus rapides. Elle connaît désormais un important développement urbain avec le projet de plateforme ferroviaire de Chongqingdong.

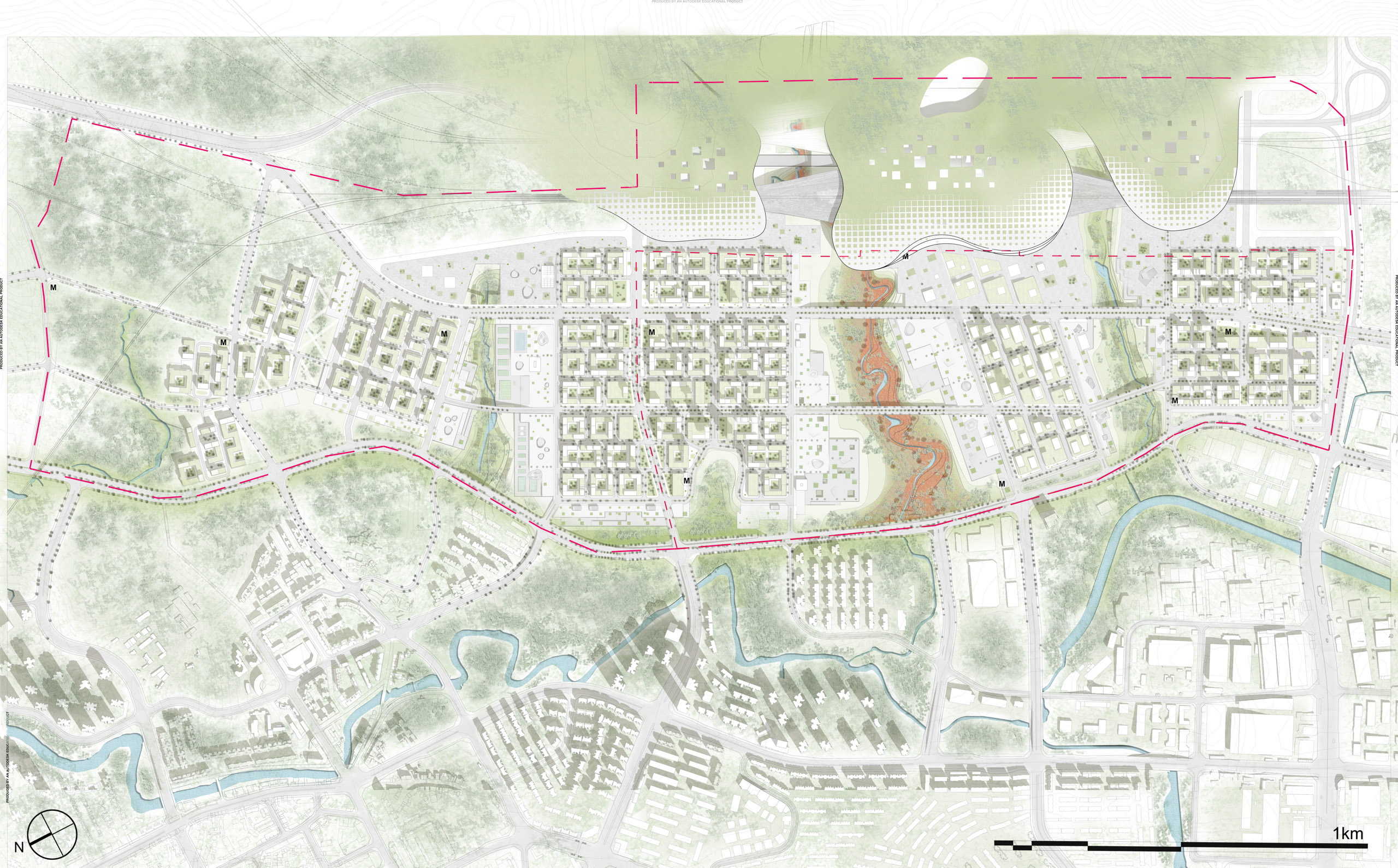
L’opération se situe au croisement de différents enjeux stratégiques pour la ville afin de conforter son rôle de vitrine du devenir urbain en lien avec la qualité de son environnement (vallée du Yangzi). Le projet a vocation à connecter les équipements culturels, la rivière et la montagne au moyen d’un développement urbain durable et innovant dans une transposition équilibrée entre tradition et modernité. Il s’agit de réinventer la typologie typique des gares chinoises en la transformant en élément structurel du paysage, à l’interface entre les montagnes qu’elle prolonge et la ville qu’elle dessert.
Le concept de « trois vallées paysagères » reliant la montagne au fleuve est une main tendue pour les habitants vers la nature. Les différents programmes et activités proposés spécifiques à chaque vallée et d'échelle variable encouragent les échanges entre la ville et les aménités naturelles environnantes. La vallée centrale est dédiée aux cultures botaniques (fleurs rares et paysage nourricier ancien ou exotique), celle du nord s’étend à la manière d’un verger et celle du sud comme un espace maraicher. Le projet investit trois échelles d’intervention – ville, équipement urbain et architecture – dans une construction tournée vers l’éco-diversité, en définissant des typologies d’espaces bâtis ouverts, traversant et lumineux. Il propose ainsi de donner un rôle majeur à la nature et à l’esprit de la montagne qu’elle peut développer, à travers le nouveau paysage fluvial, les jardins thématiques et les aménagements urbains construits autour de la gare et destinés aux piétons, tout en constituant un nouveau hub urbain pour Chongqing.
Le concept de « trois vallées paysagères » reliant la montagne au fleuve est une main tendue pour les habitants vers la nature. Les différents programmes et activités proposés spécifiques à chaque vallée et d'échelle variable encouragent les échanges entre la ville et les aménités naturelles environnantes. La vallée centrale est dédiée aux cultures botaniques (fleurs rares et paysage nourricier ancien ou exotique), celle du nord s’étend à la manière d’un verger et celle du sud comme un espace maraicher. Le projet investit trois échelles d’intervention – ville, équipement urbain et architecture – dans une construction tournée vers l’éco-diversité, en définissant des typologies d’espaces bâtis ouverts, traversant et lumineux. Il propose ainsi de donner un rôle majeur à la nature et à l’esprit de la montagne qu’elle peut développer, à travers le nouveau paysage fluvial, les jardins thématiques et les aménagements urbains construits autour de la gare et destinés aux piétons, tout en constituant un nouveau hub urbain pour Chongqing.
- Client:Chongqing Urban Planning and Design Institute
- Équipe:Architecturestudio (lead consultant), Institut de Tianjin
- Programme:Railway station
- Année:2013
- Surface:300 hectares
- Status:En études
Programmes similaires

Santiago Des3aDo, Santiago , Chili

ZAC Port Marianne – Parc Marianne, Montpellier, France

Urban Coherence and Development Project (Courbevoie, La Garenne-Colombes, Nanterre, Rueil, Suresne), Courbevoie, La Garenne-Colombes, Nanterre, Rueil, Suresnes, France

Ville nouvelle de Kaboul, Kaboul, Afghanistan

Gare du réseau de transport public du Grand Paris : Nanterre la Folie, Nanterre, France

ZAC du Triangle de l’Echât, Créteil, France

Secteur des Beauregards, Herblay-sur-Seine, France

Quartier d’affaires Urban Business Lane, Nouveau Caire, Égypte
